À partir de 32000 € En cours de commercialisation

Ref : Les Châtaigniers
PRIX REVUS À LA BAISSE 
Implanté dans un environnement verdoyant, le lotissement Les Châtaigniers vous offre une opportunité rare de construire votre maison dans un secteur agréable et bien situé. Profitez du calme de la campagne tout en restant proche de toutes les commodités.
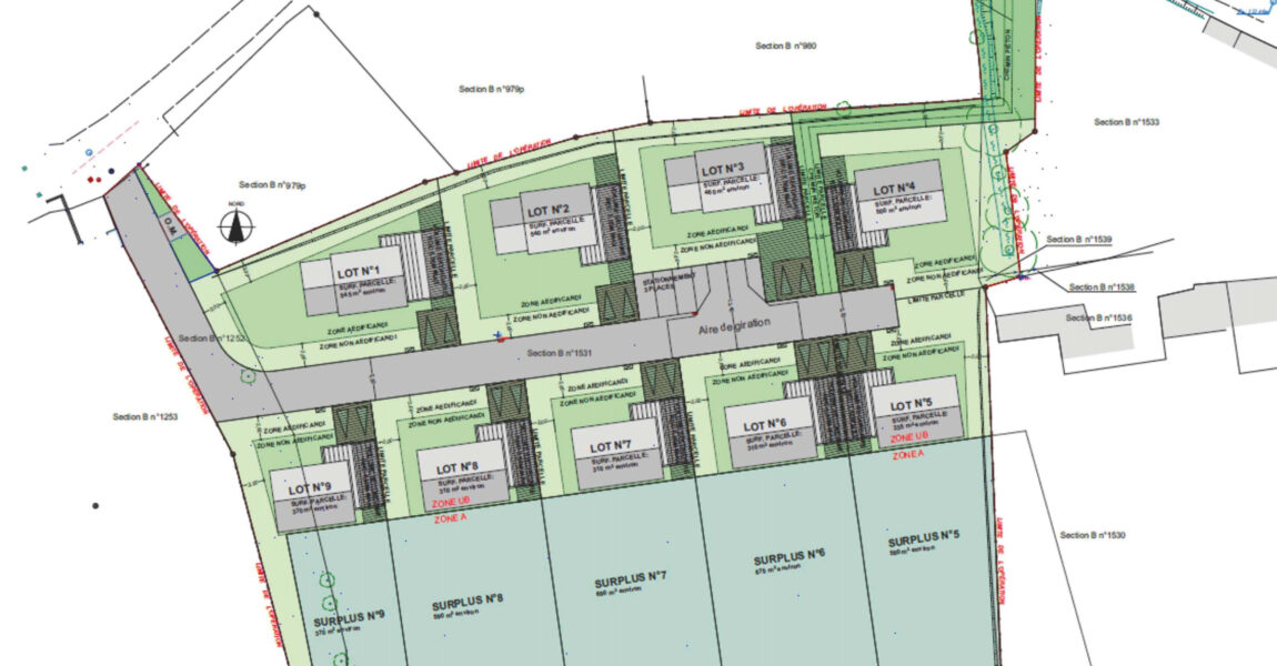
Superficies : de 460 m² à 1000 m², idéales pour concrétiser tout type de projet
Prix : à partir de 32 000 €
Disponibilités : plusieurs lots restent à saisir – ne manquez pas cette opportunité !
Un quartier paisible au cœur du Trégor, à seulement quelques minutes de Guingamp
Un environnement naturel préservé, parfait pour les familles et amoureux de la nature
Proximité immédiate avec écoles, commerces et services de la commune de Le Merzer
Contactez nous dès maintenant pour obtenir le plan du lotissement, les disponibilités actualisées et démarrer votre projet de construction dans un cadre authentique et accueillant.
Le Merzer est une petite commune bretonne située dans le département des Côtes-d'Armor, à environ 10 km au sud de Guingamp. Elle couvre une superficie d'environ 10 km² et compte une population d'environ 600 à 700 habitants. L'économie locale est principalement agricole, et la commune possède un riche patrimoine historique, avec des églises et chapelles typiques. Entourée de nature, Le Merzer offre un cadre de vie tranquille tout en étant proche des services de Guingamp.

Finistère (29) - Bretagne

Finistère (29) - Bretagne

Finistère (29) - Bretagne